• Home
  • Commercial Real Estate
    • For Sale & Lease / Rent
  • Commercial Roofing
  • Residential Roofing
  • Construction Services
  • Contact
  • More
    • Home
    • Commercial Real Estate
      • For Sale & Lease / Rent
    • Commercial Roofing
    • Residential Roofing
    • Construction Services
    • Contact
  • Home
  • Commercial Real Estate
    • For Sale & Lease / Rent
  • Commercial Roofing
  • Residential Roofing
  • Construction Services
  • Contact

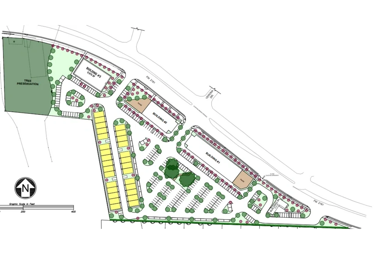
Corinth - Mixed Use Development

Recently approved for MX-C zoning

Building #1 and #2 will be 3 story buildings with commercial use on bottom (including retail and restaurants) with story 2 and 3 being luxury apartments


Building #3 is a proposed single story building with approved uses like daycare, office, gym and other flexible uses ( this building is expected to range from 9,500 to 20,000 sqft depending on final footprint)


Building #4 is a proposed coffee shop location (final design will be by user)


Townhome pads will be individually platted and sold per unit


Reach out for more information on floor plans, availability and pricing


Info@BoscoCommercial.com or through any of our contact points on this site


Thank you and look forward to working with you in the near future!

Contact Us

Let us know how we can help!

This site is protected by reCAPTCHA and the Google Privacy Policy and Terms of Service apply.

Bosco Commercial - Construction and Development

1315 Stonecrest Road, Argyle, TX, USA

Info@BoscoCommercial.com

Copyright © 2026 Bosco Commercial - All Rights Reserved.

Powered by

This website uses cookies.

We use cookies to analyze website traffic and optimize your website experience. By accepting our use of cookies, your data will be aggregated with all other user data.

Accept